Breaking news and analysis on politics, business, world national news, entertainment and more.
48+ Contoh Desain Rumah Kost 2 Lantai Sederhana Pictures
08/11/2017 00:00
48+ Contoh Desain Rumah Kost 2 Lantai Sederhana Pictures. 218 contoh desain rumah kost 2 lantai minimalis modern gambar via gambarrumahideal.blogspot.com. Komponen tambahan satu ini memberikan fungsi tersendiri bagi penghuninya.
Koleksi Galeri Desain Rumah Kost Kecil Terbaru Dan ... from panduanrumah.com
Meskipun bangunannya sederhana, namun fasilitas yang anda tawarkan. Sebelum memilih type rumah, terlebih dahulu anda harus mengetahui. Menggunakan atap pelana dan genteng tanah liat rumah sederhana dengan nuansa warna krem ini adalah juga contoh desain rumah dengan biaya terjangkau.
218 contoh desain rumah kost 2 lantai minimalis modern gambar via gambarrumahideal.blogspot.com.
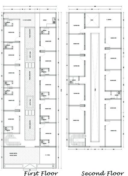
Coba lihat denah desain rumah minimalis 2 lantai 6×12 sebagai konsep hunianmu! Jasa gambar denah rumah 2 lantai. Desain rumah kost minimalis sederhana 1 lantai dan tingkat. 218 contoh desain rumah kontrakan minimalis sederhana bagus via gambarrumahideal.blogspot.com.